Používame cookies

Súbory cookie a ďalšie technológie sledovania používame na zlepšenie vášho zážitku z prehliadania našich webových stránok, na to, aby sme vám zobrazovali prispôsobený obsah a cielené reklamy, na analýzu návštevnosti našich webových stránok a na pochopenie toho, odkiaľ naši návštevníci prichádzajú. Viac info

 

Prenájom, komerčné, kancelárske priestory, rôzne rozlohy miestností, Martin - širšie centrum

Ulica: Priehradka
Mestská časť: Jahodníky
Obec: Martin
Okres: Martin
Kraj: Žilinský kraj
Druh: Priestory
Typ: Prenájom
Typ objektu: Kancelárske priestory
11,35 €/m2/mesiac
vrátane energií a parkovania

Popis nehnuteľnosti

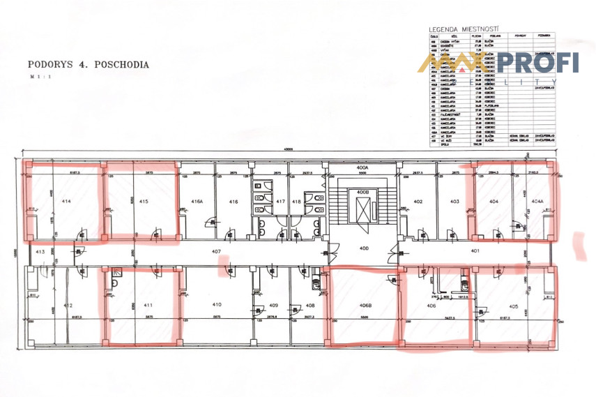
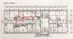
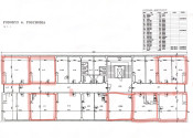
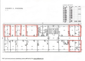
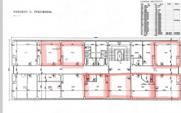
Ponuka prenájmu komerčných priestorov – Martin, časť Jahodníky - voľné priestory si pozrite na priložených pôdorysoch jednotivých poschodí:

- komerčný priestor o výmere 77 m² so samostatným vchodom na prízemí, situovaný pri hlavnom dopravnom ťahu (smer Martin – Turčianske Teplice). Priestor sa nachádza na prízemí 5-poschodovej budovy, v širšom centre mesta Martin (časť Jahodníky).  Vhodné využitie: predajňa, showroom, tančiareň, výdajné miesto, e-shop alebo iné komerčné účely.

- Kancelárske a obchodné priestory na 2. až 5. poschodí s výmerou jednotlivých miestností od  17 do 38 m² nachádzajúce sa na jednotlivých poschodiach. Niektoré miestnosti sú vybavené kuchynkou, umývadlom alebo sprchovacím kútom. 

- Súbor miestností na prízemí s wc a skladom. Slúžili ako zubná ambulancia s čakárňou.

Možnosť prenajať aj celé krídlo poschodia s viacerými miestnosťami, ktoré je oddelené vlastným vstupom.

Niektoré miestnosti sú vzájomne prepojené, čo umožňuje vytvoriť komfortný komplex dvoch až troch miestností – ideálne pre väčší tím alebo viacúčelové využitie

Výhody priestorov:

  • Nonstop prístup – vstup do budovy zabezpečený čipovou kartou 24/7
  • Súkromné parkovanie – vyhradené parkovisko s rampou priamo pri budove
  • Komfortné zázemie – na každom poschodí dámske a pánske toalety
  • Výborná dostupnosť:
  • zastávka MHD priamo pri budove
  • autobusová zastávka medzimestských spojov – 3 min. chôdze
  • centrum mesta Martin – 7 min. chôdze
  • pošta – 3 min. chôdze

cena za nájom je vrátane energií a parkovania a bez upratovania kancelárií: plátca DPH 12,65€/m2/mesiac, neplátca DPH 11.35€/m2/mesiac

Doplňujúce informácie:

Na vyžiadanie poskytneme pôdorysy poschodí a videoobhliadku priestorov

Viac informácií radi poskytneme telefonicky alebo e-mailom

 

Vlastnosti

Status:
aktívne
Vlastníctvo:
osobné
Úžitková plocha:
17 m2
Zastavaná plocha:
17 m2
Podlahová plocha:
17 m2
Skladová plocha:
17 m2
Stav:
úplne prerobený
Energetický certifikát:
žiadne
Typ budovy:
panelová stavba
Výťah:
áno
Celková plocha:
17 m2
Orientácia:
východ
Vykurovanie - centrálne:
áno
Status:
aktívne
Vlastníctvo:
osobné
Úžitková plocha:
17 m2
Zastavaná plocha:
17 m2
Podlahová plocha:
17 m2
Skladová plocha:
17 m2
Stav:
úplne prerobený
Energetický certifikát:
žiadne
Typ budovy:
panelová stavba
Výťah:
áno
Celková plocha:
17 m2
Orientácia:
východ
Vykurovanie - centrálne:
áno

Pozrieť na mape

Maklér

Slávka Borošova

Slávka Borošova

majiteľ kancelárie

  • Slovensky
  • Česky
  • Deutsch
  • lrm
  • narks
  • sora

Radi Vám poradíme

Podobné nehnuteľnosti